卫华集团600T桥式起重机设计得失(二)——主起升机构的布置
任何一台起重机,其主起升机构都是设计者关注的重点,这台600t桥机也不例外。对于大起重量起重机,尤其是起重量超过400t的起重机,其主起升机构无固定的布置型式。现在常见的有: 单电动机、单减速器、单卷筒型式,双电动机、双减速器、双卷筒型式, 双电动机、双减速器、单卷简型式, 等等。
此前,我公司生产的双电动机、双减速器、双卷简型式的起升机构,所用的两台减速器传动级数是不同的,以使两卷筒的转向不同,两卷筒及定滑轮组完全对称布置。图一为中国二重设计的双电动机、双减速器、双卷筒型式的起升机构,所用的两台减速器完全相同, 同时两卷筒的旋向也是完全相同的。这种布置型式可供设计者参考。

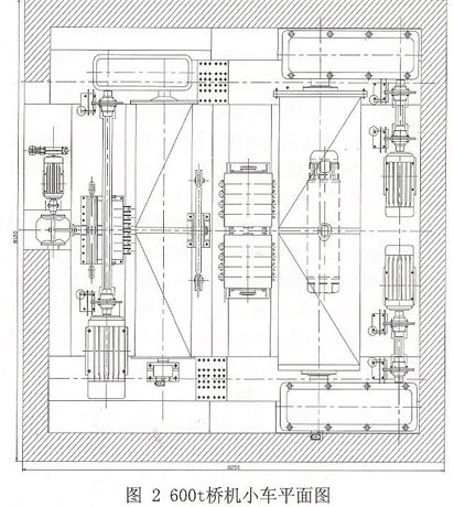
600t桥机采用了双电动机、双减速器、单卷筒型式。两减速器分别通过球校联轴器和C型盘接手与卷筒两端相联接, 相当于铸造起重机的低速轴刚性联接,如图2。在此之前, 我公司为中国一重生产的450t桥式起重机的主起升机构与此结构型式类似,不同的是,两减速器分别通过内花键与卷筒两端外花键相联接。
从受力的角度上讲, 减速器与卷筒通过花键联接是aa为理想的方式, 但由于加工卷简两端的花键需要有大型的落地锺床、大型的分度装置和高精度的成型锐刀,制造较为困难。所以, 经反复权衡,600t桥机主起升机构的两减速器分别通过球绞联轴器和C型盘接手与卷筒两端相联接。
原560t桥机的主起升机构采用了一大一小两电动机、一台行星减速器、两台普通减速器、两个卷筒的方案,如图3。为了使空载时起升速度为满载时的两倍, 主起升机构增加了一台行星减速然和一个小电动机。当空载时;大电动机制动不工作, 小电机工作, 速度为满载时的2倍。这种方案是在变频控制技术还不成熟时,采用一种特殊办法。现在变频技术日臻完善,且不断地被使用者接受,采用变频电动机的高频、高速、恒功率特性,完全可使空载时起升速度为满载时的两倍,且制造成本低廉、速度可调。

在aa初设计时, 考虑吊钩的左右极限, 小车架的平面尺寸较小, 当小车部分需要维修时, 维修工人有可能到达不了需要维修的地方。为了保证维修工人能够到达任何需要维修的地方, 将小车架的上平面四周加大, 小车架的四周均有不低于500日1m宽的通迫(图2中剖面线所示)。吊钩的右极限也随之加大了400mmo 同时为了尽量保证吊钩的右极限尺寸,将起升机构的四套盘式制动器放置在卷简与电动机之间,如图2。在设计时朱充分考虑到制动器与卷筒、减速器之间的间隙,以及制动器手动释放手柄的操作空间,致使制动器手动释放手柄无法打开,aa终不得不将制动器手动释放手柄拆下,如图4。







